Appartamento in Vendita a San Benedetto del Tronto
Zona: Centrale sud
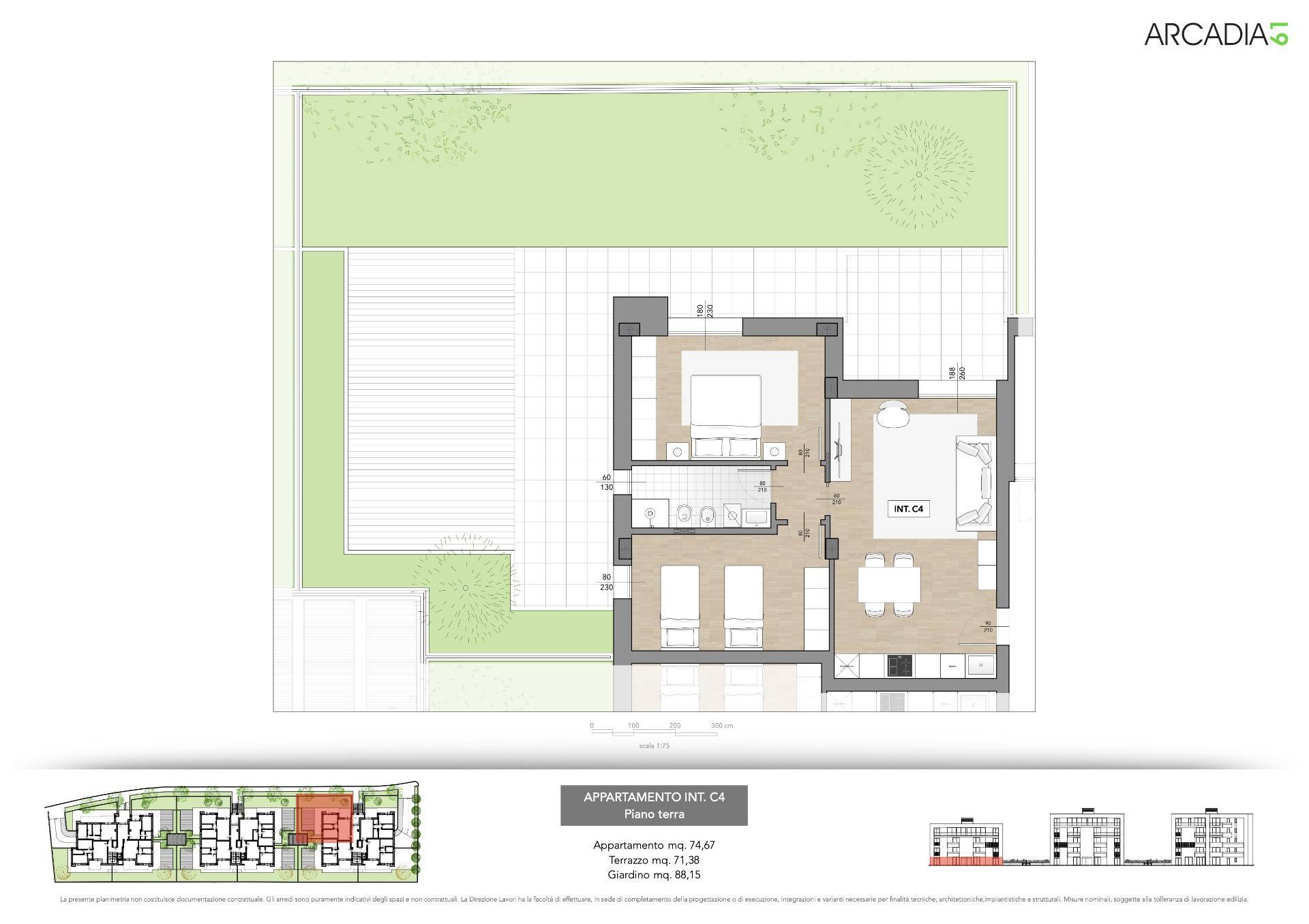
Appartamento al piano terreno, delle dimensioni di 74 m² circa, composto da ingresso su soggiorno con angolo cottura, due camere da letto (una matrimoniale ed una doppia), un bagno finestrato, corridoio nel reparto notte. L'Appartamento è inoltre fornito di una corte esterna pavimentata delle dimensioni di 71 mq circa, oltre ad un giardino privato di 67 m² circa allestito a verde e recintato oltre ad una fioriera di 20 mq circa.
L'Appartamento, in corso di costruzione, sarà terminato per Giugno 2028 con rifiniture a scelta dell'acquirente come e pavimentazioni in parquet o Grace porcellanato, infissi in alluminio certificati, impianto di riscaldamento a pavimento, impianto di climatizzazione caldo e freddo con split in ogni stanza, portoncino blindato d'ingresso, video citofono smart con risposta da smartphone, illuminazione esterna del fabbricato Guzzini, struttura antisismica.
Localizzato all'interno del complesso residenziale Marina Living, posto nella servita zona di San Pio X e non distante dalla spiaggia, in un contesto di verde ed eleganza.
- Con prezzo da computare a parte è possibile acquistare un comodo garage al piano interrato del medesimo fabbricato con prezzi a partire da 28.000 euro.
- Nessuna commissione a carico dell'acquirente.
Ultimo aggiornamento 13-01-2026




















