Casa cielo - terra in Vendita a Ripatransone
Zona: Centrale / Centro Storico (vecchio Incasato Medievale)
Classe energetica
EP glnr: 268.66 kwh/㎡
Affascinante dimora d'epoca con ampio giardino, anticamente destinata come convento ed oggi utilizzata come elegante residenza, sita nel magnifico centro storico di Ripatransone con l'affaccio panoramico sulla piazzetta prospiciente, sul borgo, sulle colline e vallate circostanti........ una sbirciata sul mare.
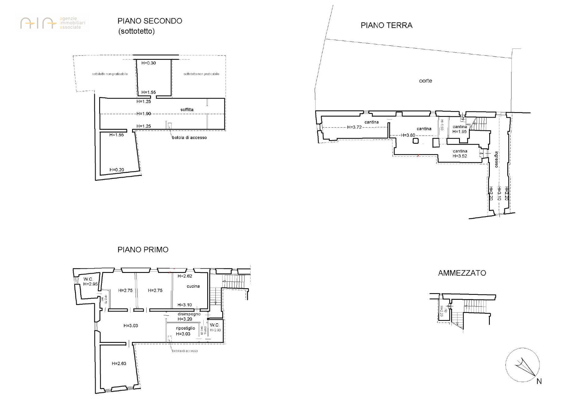
La proprietà, articolata su due livelli oltre la soffitta, è in possesso di un ingresso autonomo d'impostazione nobiliare, costituito da un ampio-lungo vano arricchito da volte a crociera con mattoni a faccia vista e pavimentazione in cotto originale.
Essa è costituita da:
- al piano terra - locali vari per complessivi mq 140 circa, in buona parte architettonicamente pregiato da volte a crociera e destinato a cantine-ripostigli, ci sono alcuni gradini di dislivello con il giardino di cui appresso; ampio giardino di mq 190 circa con uno storico pozzo;
- al piano ammezzato piccolo locale di mq 3,5 circa, ex acetaia;
- al piano primo l'abitazione di mq 185 circa, collegato al piano inferiore da una bellissima ampia scala rifinita con antichi mattoni a faccia vista ampio ingresso, cucina abitabile con camino, grandissimo soggiorno, d'antica impostazione, dal quale distribuiscono le tre stanze da letto, due bagni, ampio ripostiglio-lavanderia con scala di collegamento con il sovrastante piano soffitta sottotetto (allo stato grezzo). La pavimentazione dell'ingresso-corridoio e dell'ampio soggiorno sono in cotto originale.
L'antica dimora, seppure abbia mantenuto in gran parte il carattere architettonico originario, soprattutto nell'ampio ingresso al piano terra e nell'abitazione del primo piano si mostra sostanzialmente in un discreto stato, grazie ai vari lavori di manutenzione effettuati nel tempo
.mentre i locali al piano terra necessitano di una ristrutturazione totale, mai effettuata prima. Attualmente il riscaldamento è assente, l'impiantistica da rifare, i bagni seppur funzionanti sono da ristrutturare.
Insomma, un bene importante che richiede un attento recupero dell'esistente per una conservazione rigorosa dell'originario stile architettonico, tuttavia senza rinunciare ad una migliore funzionalità e tecnologia.
Grazie alla sua centralissima ubicazione, i principali negozi e i servizi sono a due passi
.Distanza dal mare km 13 circa.
Ottima soluzione per realizzare una elegante residenza d'epoca, oppure una raffinata ed affascinante struttura ricettiva in uno dei borghi storici più belli del territorio.
Ultimo aggiornamento 27-10-2025

































