Appartamento in Vendita a San Benedetto del Tronto
Zona: Centrale sud
Classe energetica
EP glnr: 258.93 kwh/㎡
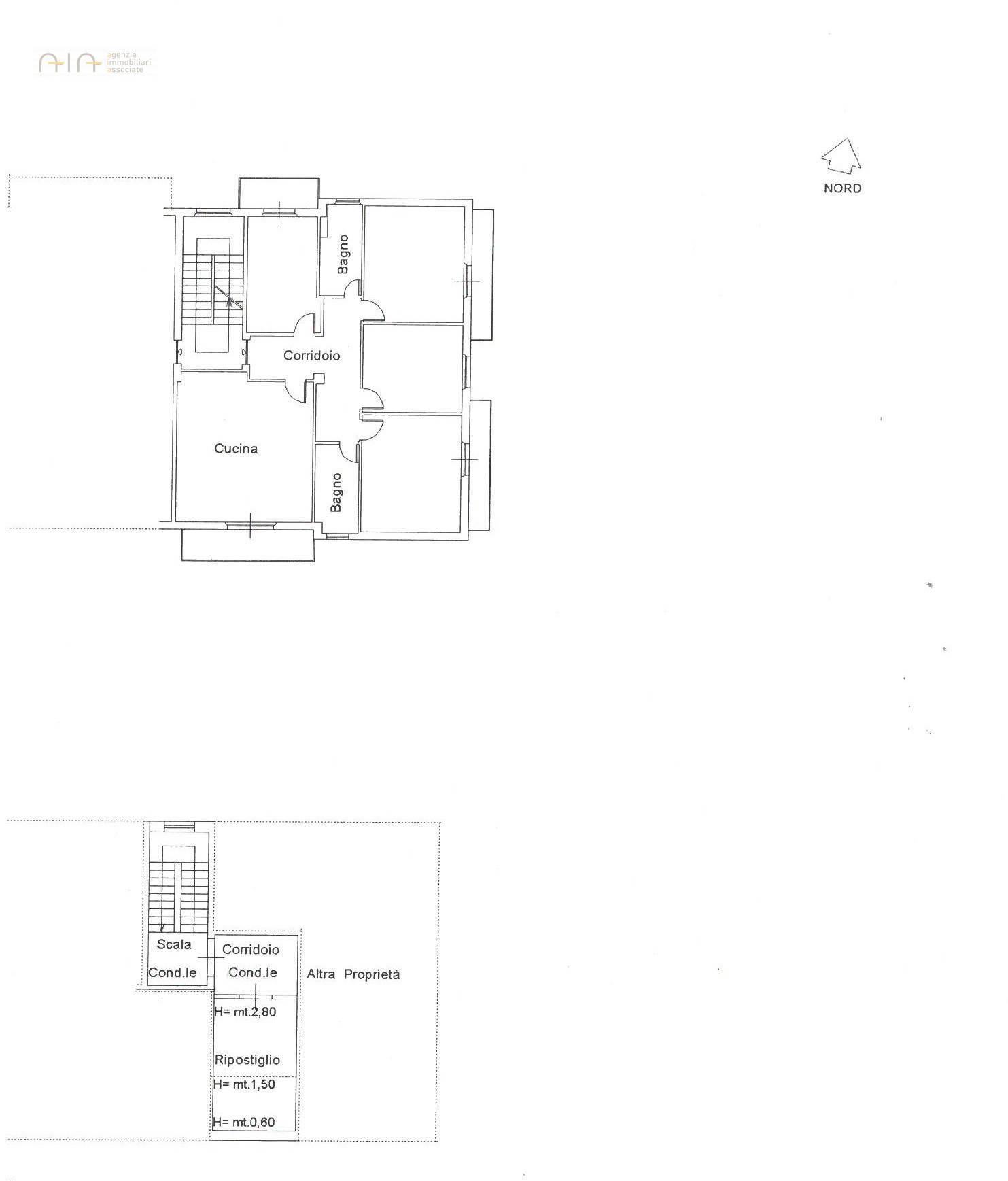
In zona centrale e ben servita proponiamo grande Appartamento al primo piano di 140 mq circa (senza ascensore) composto da ingresso, ampia cucina abitabile, quattro camere da letto (tutte matrimoniali di cui tre con balcone), due bagni (uno con doccia ed uno con vasca), e quattro balconi di 20 mq circa.
Completano la proprietà una soffitta (comodo ripostiglio con finestra velux) al piano terzo di 12 mq circa ed un garage di 22 mq circa situato al piano sotto strada.
L'Appartamento è stato ristrutturato di recente e si presenta in ottime condizioni con impiantistica a norma, depuratore d'acqua, infissi in pvc con doppi vetri, impianto di condizionamento e porta blindata.
Ubicato in una piccola palazzina a soli 500 metri dal mare.
Opportunità per famiglia numerosa e buon per rapporto qualità prezzo.
Ultimo aggiornamento 14-12-2024











































