Appartamento in Vendita a San Benedetto del Tronto
Zona: Centrale sud
Classe energetica
EP glnr: 22.93 kwh/㎡
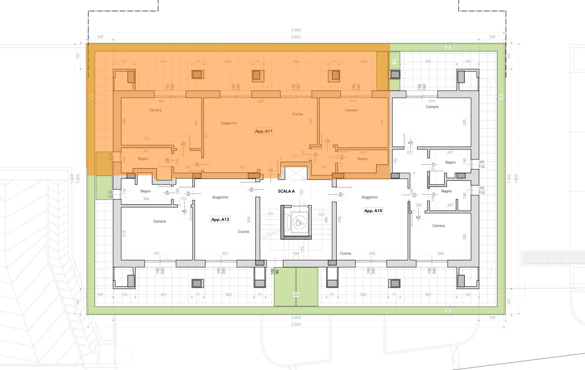
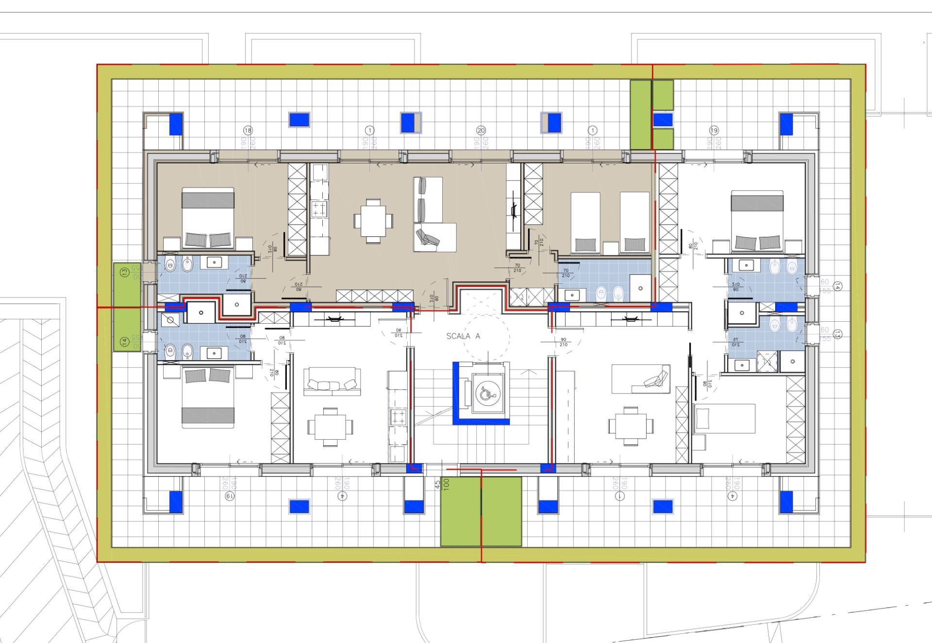
Proponiamo in Vendita un elegante Appartamento di 85 m², situato al quarto piano del prestigioso complesso residenziale Caroselli Garden House. L'immobile è composto da un ampio soggiorno con angolo cottura, due camere da letto (una matrimoniale e una doppia), due bagni di cui uno finestrato, entrambi con doccia, e due pratici disimpegni nel reparto notte. La proprietà è arricchita da una spaziosa terrazza loggiata esterna di 58 m², ideale per trascorrere momenti di relax all'aperto durante la bella stagione.
L'Appartamento, pronto per la consegna, è rifinito con pavimentazione in parquet di rovere su tutta la superficie, infissi Shuko certificati, e impianto di riscaldamento e raffrescamento canalizzato, controllabile tramite app per una gestione ottimale della temperatura in ogni stanza. L'unità è inserita all'interno di un elegante fabbricato di cinque piani, accessibile esclusivamente ai residenti tramite tastierino numerico, garantendo massima sicurezza e privacy.
Il complesso residenziale è circondato da un meraviglioso giardino interno e piante su tutte le balconate e logge esterne, con un sistema centrale di irrigazione che utilizza acqua recuperata in accumulo. Inoltre, l'edificio è stato realizzato in classe energetica NZEB (Near Zero Energy Building), con un impianto fotovoltaico centrale da 44 kW e soluzioni progettuali ecocompatibili come il cappotto esterno e l'ottimizzazione dell'irraggiamento naturale.
Posizione: La proprietà è situata in una posizione centrale, a pochi passi da scuole, banche, farmacia, supermercati, e a soli 650 metri dal mare. È la soluzione ideale per chi cerca un immobile esclusivo, dal design moderno, con impatto estetico unico e illuminazione notturna suggestiva.
Note:
- Garage disponibile a partire da €42.000, con predisposizione per ricarica auto elettriche (prezzo separato).
- Cantina disponibile a partire da €10.000 (prezzo separato).
- Posto auto esterno disponibile a partire da €26.000 all'interno del complesso (prezzo separato).
- Nessuna commissione a carico dell'acquirente.
Ultimo aggiornamento 02-12-2025












































































