Locale Artigianale / Deposito in Affitto a San Benedetto del Tronto
Zona: Residenziale Sud
532 mq
Classe energetica
G
EP glnr: 290.90 kwh/㎥
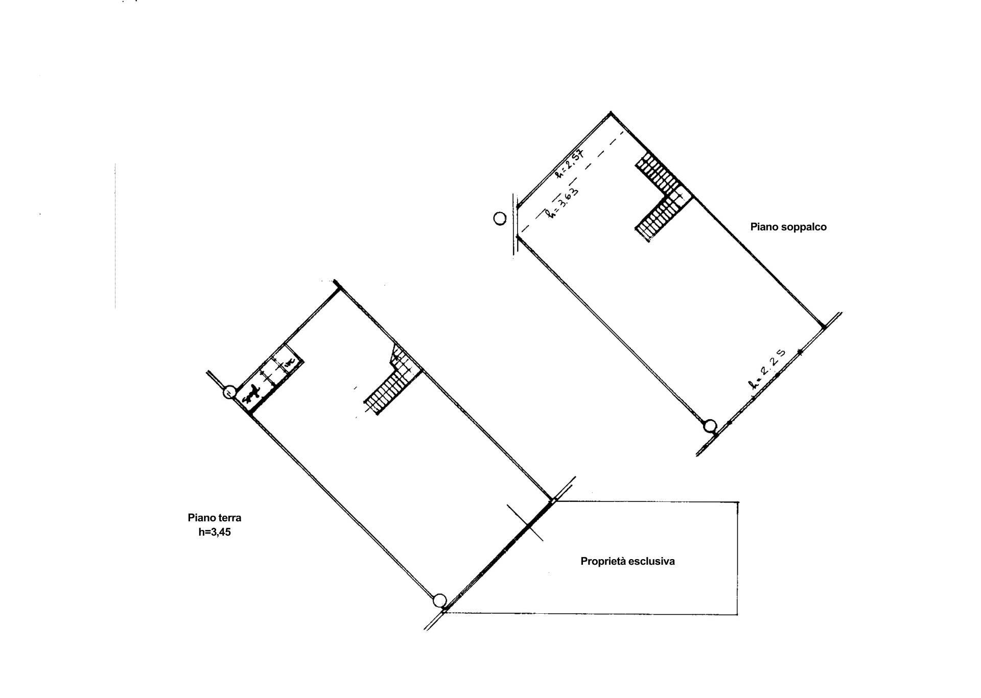
Locale a destinazione artigianale, delle dimensioni totali di 532 m² circa, così dislocato:
- Locale al piano terra delle dimensioni di 260 m² circa, in parte a destinazione artigianale (175 m² circa) ed in parte a destinazione magazzino (93 m² circa).
- Locale al piano primo, accessibile da una scala interna, delle dimensioni di 260 m² circa, in parte a destinazione artigianale (175 m² circa) ed in parte a destinazione soppalco magazzino (84 m² circa).
La proprietà si presenta in discrete condizioni, completa di impianto elettrico a norma, bagno con regolare antibagno. Inserito all'interno di un complesso commerciale con varie attività, localizzato lungo la strada statale Adriatica quindi con garanzia di visibilità e facilità di accesso.
Informazioni immobile
Codice: 32404
Contratto: Affitto
Tipologia: Locale Artigianale / Deposito
Regione: Marche
Provincia: Ascoli Piceno
Comune: San Benedetto del Tronto
Zona: Residenziale Sud
Prezzo: € 1.500
Totale mq: 532 mq
Stato conservazione: Discreto
Caratteristiche
Qualità costruttiva: ★★★
Finiture interne: ★★
Canna fumaria presente o già autorizzata
Mappa immobile
Condividi
Ultimo aggiornamento 23-09-2025





















